Novogradnja u Diklo, Zadar (Rezidencijalno okruženje, stanovi)

Naslovna Stanovi

Opis

Prodaja stanova u Zadru, u novogradnji pozicijoniranoj s pogledom na more.

 

Stanombena zgrada se nalazi u Diklu, zadarskom kvartu koji se razvija longitudinalno prateći obalnu liniju i njegove plaže, što ga čini optimalnim za miran život na moru, 10ak min vožnje udaljen od centra Zadra.

Novogradnja koja se sastoji od prizemlja i 2 kata, na parceli od 850m2, na mirnoj lokaciji.

Svega 250m udaljenoj od mora, zgrada je zaštićena od udara mora u prvom redu, a opet gotovo da je locirana na plaži.

 

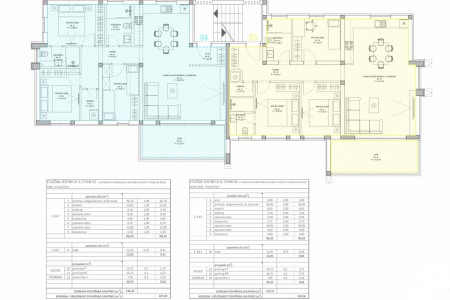
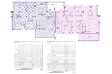
Ukupno 6 stanova (2 po etaži) pružaju mirno i komforno stanovanje koje se razlikuje od moderne urbanizacije i prenapučenosti novogradnje.

 

Stan S1 u prizemlju ima pripadajuće dvorište s vrtom i terasom od 180m2

Stan S2 u prizemlju ima pripadajuće dvorište s vrtom i terasom od 125m2 te bazen od 22m2

Stanovi S3 i S4 na prvom katu imaju prostranu lođu od 12.5m2

Stanovi S5 i S6 na drugom, posljednjem katu, imaju vlastitu privatnu krovnu terasu od 108m2 i 92m2 

 

Detalji pojedinih stanova i specifikacija prostorija te tlocrti, nalaze se u prilogu.

 

Svi stanovi imaju izravan pogled na more s jugo-jugoisotčne strane te okolnu netaknutu prirodu sa sjeverno-sjeverozapadne strane.

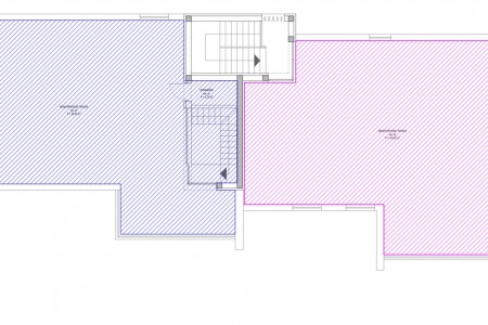
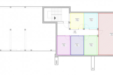
Svi stanovi dolaze s 2 vanjska parkirna mjesta u dvorištu te spremištima u podrumskoj etaži.

 

 

 

STANOVI U PROJEKTU:

 

PRIZEMLJE:

STAN 1:   144,59m2       507.000€

STAN 2:   133,21m2       PRODAN

 

I. KAT: 

STAN 3:    107,69m2      403.000€ 

STAN 4:    104,56m2      406.000€

 

II. KAT:

STAN 5:     135,63m2     560.000€

STAN 6:     131,19m2     580.000€

 

 

 

Detalji

  • ID nekretnine: 461
  • Tip nekretnine: Stanovi
  • Vrsta usluge: Prodaja
  • Lokacija: Zadar, Diklo
  • Površina: 1.00 m2
  • Cijena: 403,000 €
  • Kat: 2
  • Izgrađeno: 2026
  • Parking / garaža: Da

Mapa