Land for sale, with building permit for a villa!

Home Lands

Description

1000m2 plot of land with a building permit for a 250m2 villa!

A building plot for sale with a building permit for the construction of a 250m2 villa with a swimming pool and a garden.

 

Location:

Poljica, Zadar

2km from the Ljubač bay and located in a rural environment and nature makes this project a great opportunity to live close to the city - close but far from the hustle and bustle of the city.

 

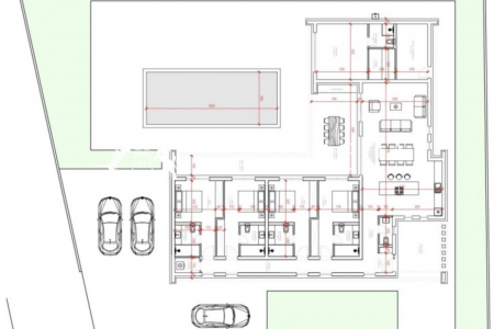
A building permit has been issued for the construction of a house with a net usable area of ​​250m2, on a plot of land of 1000m2 with its own swimming pool.

 

House typology - single-storey, with an access road and a covered entrance that protects from the elements.

 

Entrance hall with a hallway that branches into two parts:

The living area of ​​the house consists of a kitchen with an island, a dining room with a table for 8 people and a living room from which you can access a covered terrace with an outdoor kitchen and a 40m2 swimming pool and a courtyard.

A gym with its own bathroom and connected sauna make up the spa zone of the living area, with direct access from the yard and pool area.

The night zone of the house consists of a hallway with 4 separate bedrooms, each with its own in-room bathroom and wardrobes, and access to the yard and pool, which was a key aspect during the design, with the aim of providing a higher level of comfort and privacy for individual household members.

The outdoor parking spaces are covered, and the house also has storage rooms, a separate laundry room and a separate workshop for pool equipment and the heating/cooling system of the building.

 

Attached is the floor plan.

 

Contact us for additional information at: 098 9915 306

Details

  • Property ID: 469
  • Property type: Lands
  • Service type: Sale
  • Location: Zadar
  • Area: 250.00 m2
  • Price: 130,000 €
  • Land type: Building land

Mapa